Search

Tip 90

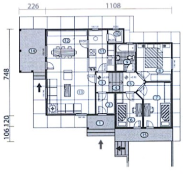
Kvadratura prostorija

Broj

Naziv prostorije

P(kvadrata)

1.

Ulaz

2.71

2.

Vetrobran

3.06

3.

Predsoblje

2.04

4.

Stepenište

2.04

5.

Galerija

2.59

6.

Dečja soba

6.72

7.

Dečja soba

9.63

8.

Spavaća soba

9.20

9.

Kupatilo

4.08

10.

Ostava

1.32

11.

Kuhinja

7.34

12.

Trpezarija

12.96

13.

Dnevna soba

14.76

14.

Terasa

8.36

15.

Balkon

5.30

Ukupna korisna površina

82.59



Dimenzije osnove 13.34 x 10.74 m
Površina osnove 90.78 m2