Search

Tip 105

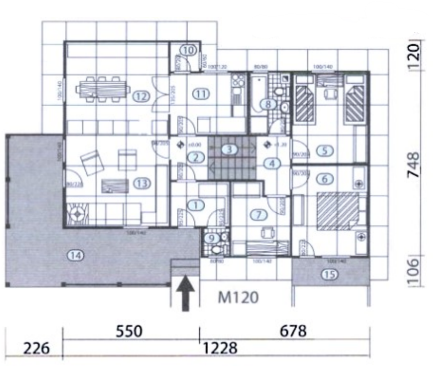
Kvadratura prostorija

Broj

Naziv prostorije

P(kvadrata)

1.

Vetrobran

5.06

2.

Predsoblje

3.91

3.

Stepenište

2.30

4.

Galerija

3.91

5.

Dečja soba

3.91

6.

Spavaća soba

10.44

7.

Radna soba

3.91

8.

Kupatilo

12.60

9.

WC

2.64

10.

Ostava

5.76

11.

Kuhinja

12.96

12.

Trpezarija

19.74

13.

Dnevna soba

2.72

14.

Terasa

12.60

15.

Balkon

3.06

Ukupna korisna površina

95.08



Dimenzije osnove 14.54 x 9.74 m
Površina osnove 105.13 m2